Scroll to top
Back
Proyectos

Colegio Mayor Rodríguez Cadarso Santiago de Compostela

Scroll

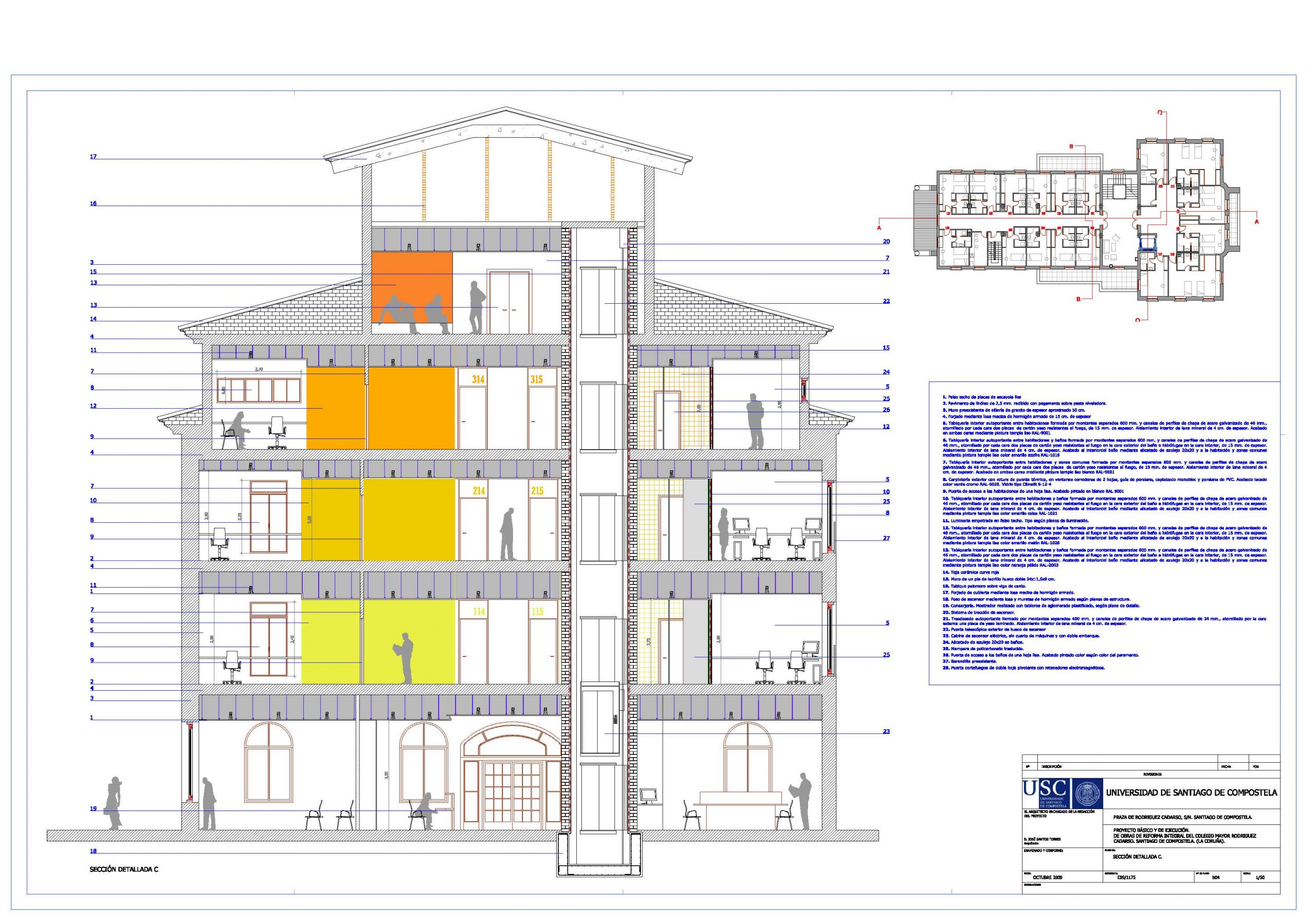
El Colegio Mayor Rodríguez Cadarso es un edificio con protección patrimonial situado en el Campus Sur de la Universidad de Santiago de Compostela. Se proyectó la rehabilitación integral del mismo, manteniendo las fachadas y la estructura, de forma que, tanto los espacios comunes como las habitaciones y zonas de servicio y las instalaciones, se adaptaran a los nuevos usos y necesidades de los estudiantes.

Así, se dotó a las habitaciones de baños individuales y de espacios comunes como salas de estudio y cocinas compartidas. Se adaptó el edificio a las condiciones de accesibilidad normativas, incluyendo la instalación de ascensor y habitaciones adaptadas, y se mejoró la eficiencia energética, tanto en lo relativo a la disminución de la demanda como la eficiencia de las instalaciones y equipos.

A todo ello se trató de dotar de una imagen moderna y adaptada a los nuevos tiempos y usuarios.